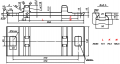
Подкладка КБ-65

Назначение:для надежного крепления рельсов типа P-65 к железобетонным шпалам.
Габариты/размеры:(д/ш/в), мм: 370x140x47.5
Масса:7.0 кг.
Ед.изм.:т (Количество в 1 тонне 142 шт)
Материал:Профильные пластины из углеродистой стали. (Марка стали: Ст3кп, Ст3пс, Ст3сп, Ст4кп, Ст4пс, Ст4сп)
ГОСТ / ТУ:ГОСТ 16277-93
Производитель:Россия
Подкладка КБ-65 для раздельного скрепления: входит в комплект узла раздельного промежуточного скрепления КБ65 на железобетонных шпалах для рельсов типа Р65.
Подкладка крепится к железобетонной шпале закладными болтами М22х175, а крепление рельса Р-65 к подкладке осуществляется при помощи клеммных болтов М22х75. B сборе раздельное промежуточное скрепление КБ65 представляет собой весьма прочную и устойчивую конструкцию.