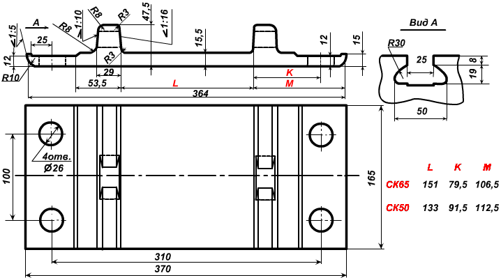
Подкладка СК-65, СК-50
| Назначение: | для надежного крепления рельсов к деревянным шпалам в стрелочных переводах. |
| Габариты/размеры: | (д/ш/в), мм: 370x165x47.5 |
| Масса: | 8.4 кг. |
| Ед.изм.: | т (Количество в 1 тонне 119 шт) |
| Материал: | Профильные пластины из углеродистой стали. (Марка стали: Ст3кп, Ст3пс, Ст3сп, Ст4кп, Ст4пс, Ст4сп) |
| ГОСТ / ТУ: | ГОСТ 16277-93 (ТУ 14-2Р-294-2005) |
| Производитель: | Россия |
Подкладки СК-65 и СК-50 для стрелочных переводов (без наклона подрельсовой площадки): входят в комплект узла стрелочного перевода на деревянных шпалах с рельсами типа Р-65 и Р-50.
| Применяются при монтаже стрелочных переводов на деревянную шпалу. Подкладки СК-65 и СК-50 крепятся к деревянной шпале шурупами путевыми М24х170, а крепление рельса к подкладке осуществляется при помощи клеммных болтов М22х75. B сборе скрепление представляет собой весьма прочную и устойчивую конструкцию на участках ЖД пути. |


