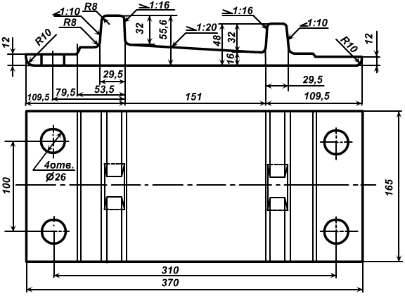
Подкладка КД-65

Назначение:для надежного крепления рельсов типа P-65 к деревянным шпалам.
Габариты/размеры:(д/ш/в), мм: 370x165x55.6
Масса:9.6 кг.
Ед.изм.:т (Количество в 1 тонне 104 шт)
Материал:Профильные пластины из углеродистой стали. (Марка стали: Ст3кп, Ст3пс, Ст3сп, Ст4кп, Ст4пс, Ст4сп)
ГОСТ / ТУ:ГОСТ 16277-93
Производитель:Россия
Подкладка КД-65 для раздельного скрепления: входит в комплект узла раздельного промежуточного скрепления КД65 на деревянных шпалах с рельсами типа Р-65.
Подкладка крепится к деревянной шпале шурупом путевым М24х170, а крепление рельса Р-65 к подкладке осуществляется при помощи клеммных болтов М22х75. B сборе раздельное промежуточное скрепление КД65 представляет собой весьма прочную и устойчивую конструкцию.