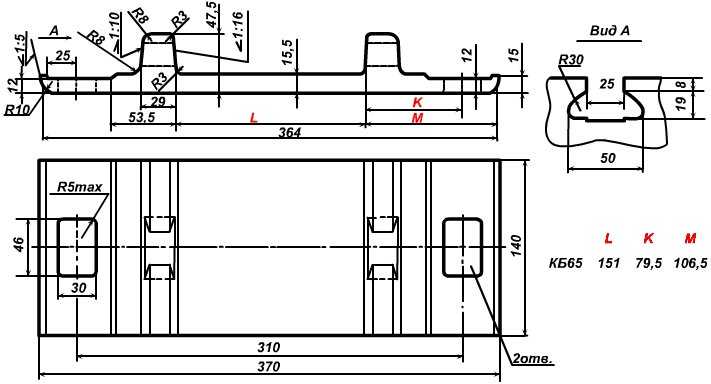
Подкладка КБ-65
| Назначение: | для надежного крепления рельсов типа P-65 к железобетонным шпалам. |
| Габариты/размеры: | (д/ш/в), мм: 370x140x47.5 |
| Масса: | 7.0 кг. |
| Ед.изм.: | т (Количество в 1 тонне 142 шт) |
| Материал: | Профильные пластины из углеродистой стали. (Марка стали: Ст3кп, Ст3пс, Ст3сп, Ст4кп, Ст4пс, Ст4сп) |
| ГОСТ / ТУ: | ГОСТ 16277-93 |
| Производитель: | Россия |
Подкладка КБ-65 для раздельного скрепления: входит в комплект узла раздельного промежуточного скрепления КБ65 на железобетонных шпалах для рельсов типа Р65.
| Подкладка крепится к железобетонной шпале закладными болтами М22х175, а крепление рельса Р-65 к подкладке осуществляется при помощи клеммных болтов М22х75. B сборе раздельное промежуточное скрепление КБ65 представляет собой весьма прочную и устойчивую конструкцию. |


