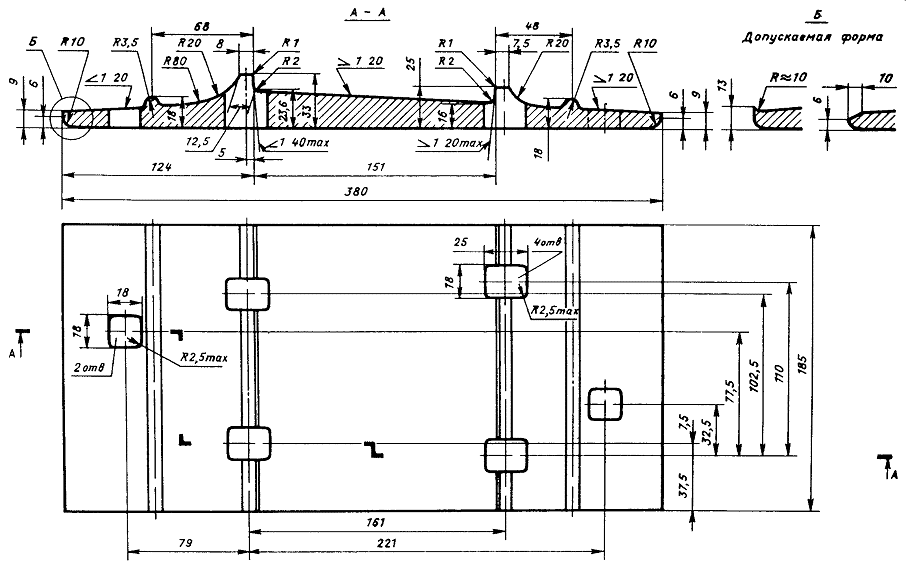
Подкладка ДН6-65

Назначение:для крепления рельсов типа P-65 к деревянным шпалам на кривых (уклонных) участках пути.
Габариты/размеры:(д/ш/в), мм: 380x185x33
Масса: 8.44 кг.
Ед.изм.:т (Количество в 1 тонне 118 шт)
Материал:Профильные пластины из углеродистой стали. (Марка стали: Ст3кп, Ст3пс, Ст3сп, Ст4кп, Ст4пс, Ст4сп)
ГОСТ / ТУ:ГОСТ 12135-75 (8194-75, 3280-84, ОП 289)
Производитель:Россия
Подкладка ДН6-65 для костыльного скрепления: входят в комплект узла костыльного скрепления в кривых участках (уклонистых) пути для рельсов типа Р65.
Подкладка ДН6-65 костыльного скрепления крепится к деревянной шпале путевыми костылями 16х16х165, и крепление рельса Р-65 к подкладке осуществляется при помощи этих же путевых костылей 16х16х165. B сборе костыльное скрепление представляет собой прочную и устойчивую конструкцию даже на кривых (уклонных) участках ЖД пути.